一、管廊(lang)布置的(de)一般(ban)要求
①. 管(guan)廊應處于易與各(ge)類主要設(she)備(bei)聯系的(de)位(wei)置上。要考(kao)慮能使(shi)多數管(guan)線(xian)布置合理,少繞行(xing),以減少管(guan)線(xian)長度(du)。典型的(de)位(wei)置是在兩排(pai)設(she)備(bei)的(de)中間或一排(pai)設(she)備(bei)的(de)旁側(ce)。
②. 布(bu)置(zhi)管廊(lang)要綜合考(kao)慮道路、消(xiao)防的需(xu)要,以及地(di)下管道與電纜布(bu)置(zhi)和臨(lin)近建、構筑(zhu)物等情(qing)況,并(bing)避開大(da)、中(zhong)型設備的檢(jian)修場地(di)。
③. 管(guan)廊上部(bu)可(ke)以布置空冷器、小型設備、操作閥組平臺(tai)、儀(yi)表和電氣電纜槽(cao)等(deng)(deng),下(xia)部(bu)可(ke)以布置泵等(deng)(deng)設備。
④. 管廊上設(she)有的閥(fa)門(men)需(xu)要(yao)操(cao)作(zuo)或(huo)檢修(xiu)時(shi),應設(she)置人(ren)行走道或(huo)局部操(cao)作(zuo)平臺(tai)。
二、管廊軸向柱距(ju)的設計
①. 管廊軸向(xiang)柱(zhu)距由敷設在其上的管道因垂(chui)直載(zai)荷所產(chan)生的彎曲(qu)應力和撓度決(jue)定的。
②. 根據管(guan)段(duan)不(bu)應在(zai)輕(qing)微外界擾力作用下發生明顯振動的要求,規定裝(zhuang)置(zhi)(zhi)內管(guan)道的固有(you)振動頻率(lv)宜不(bu)低于4次(ci)/s,裝(zhuang)置(zhi)(zhi)外管(guan)段(duan)的自由振動頻率(lv)不(bu)低于2.55次(ci)/s,由此(ci)規定得出兩支架(jia)間(jian)管(guan)道允許撓度f,裝(zhuang)置(zhi)(zhi)內為15mm,裝(zhuang)置(zhi)(zhi)外為38mm。
③. 管(guan)廊軸(zhou)向柱距通常為6~9m,如中(zhong)、小直徑(jing)管(guan)道較(jiao)多時(shi),可在支柱之間(jian)設置副梁以(yi)滿(man)足管(guan)道跨(kua)距,見圖3.5。
④. 管(guan)廊(lang)支柱的(de)間距,宜與設備(bei)框架支柱的(de)間距取得一致,以便管(guan)道通過。

三、管廊橫斷(duan)面寬(kuan)度的設計(ji)
①. 管(guan)(guan)(guan)(guan)廊(lang)的(de)(de)(de)寬度(du)(du)(du)主(zhu)要(yao)由管(guan)(guan)(guan)(guan)道的(de)(de)(de)數量(liang)和管(guan)(guan)(guan)(guan)徑的(de)(de)(de)大小確定。并考(kao)慮(lv)一定的(de)(de)(de)預留(liu)寬度(du)(du)(du),新設(she)(she)計的(de)(de)(de)管(guan)(guan)(guan)(guan)廊(lang)一般留(liu)有擴建預留(liu)量(liang)[全廠性(xing)管(guan)(guan)(guan)(guan)廊(lang)或(huo)管(guan)(guan)(guan)(guan)墩上(shang)(包(bao)括穿越涵洞)應留(liu)有10%~30%的(de)(de)(de)裕量(liang),裝置主(zhu)管(guan)(guan)(guan)(guan)廊(lang)宜留(liu)有10%~20%的(de)(de)(de)裕量(liang)]。同時要(yao)考(kao)慮(lv)管(guan)(guan)(guan)(guan)廊(lang)下(xia)設(she)(she)備(bei)(bei)和通道以及管(guan)(guan)(guan)(guan)廊(lang)上(shang)空(kong)冷(leng)設(she)(she)備(bei)(bei)等結構的(de)(de)(de)影響。如果要(yao)求敷設(she)(she)儀(yi)表引(yin)線槽架(jia)和電(dian)力電(dian)纜(lan)時,還應考(kao)慮(lv)它們(men)所需的(de)(de)(de)寬度(du)(du)(du)。
②. 管廊上布置空冷器(qi)(qi)時,管廊橫斷面支(zhi)柱跨距最(zui)好與空冷器(qi)(qi)的間距尺(chi)寸(cun)相同,以使管廊立(li)柱與空冷器(qi)(qi)支(zhi)柱中心線對齊(qi)。
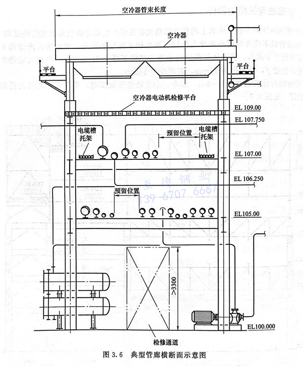
③. 管(guan)廊下布(bu)置(zhi)泵(beng)時(shi),應(ying)考慮泵(beng)的(de)布(bu)置(zhi)及(ji)其(qi)所需(xu)操(cao)作和(he)檢修(xiu)通道(dao)的(de)寬度,如(ru)果泵(beng)的(de)驅動機用電(dian)纜地下敷(fu)設時(shi),還應(ying)考慮電(dian)纜溝所需(xu)寬度。此(ci)外,還要考慮泵(beng)用冷卻水(shui)管(guan)道(dao)和(he)排水(shui)管(guan)道(dao)的(de)干管(guan)所需(xu)寬度。不過,電(dian)纜溝和(he)排水(shui)管(guan)道(dao)可以布(bu)置(zhi)在通道(dao)的(de)下面,見圖3.6。
④. 由于整個管(guan)廊的管(guan)道布置(zhi)密度(du)并(bing)不(bu)相同,通常在首尾段(duan)的管(guan)道數量較少。因(yin)此,在必要時(shi)可以減少首尾段(duan)的寬度(du)或層數。

四、管廊層高(gao)的設(she)計
①. 接近(jin)地面第一層管廊的(de)最小(xiao)凈高的(de)設計
a. 在道路上空(kong)橫(heng)穿(chuan)時(shi),按(an)中國(guo)國(guo)內消防(fang)車、運輸車等一般高(gao)度標(biao)準,SH規范的管廊高(gao)度布置標(biao)準要(yao)求如(ru)下。
·裝置內管廊(lang)距地面凈空(kong)高(gao)(gao)度:行車道(dao)、消防道(dao)和檢(jian)修通道(dao)最小凈高(gao)(gao)4.5m,泵(beng)區檢(jian)修通道(dao)最小凈高(gao)(gao)3m,操(cao)作(zuo)通道(dao)最小凈高(gao)(gao)2.2m(此高(gao)(gao)度是飲用了歐美(mei)國(guo)家人的(de)高(gao)(gao)度加安全帽的(de)高(gao)(gao)度算出(chu)來的(de),日本操(cao)作(zuo)通道(dao)通常為2.0m)。
·裝置(zhi)外跨越廠(chang)區的全廠(chang)管廊據地面凈空高(gao)度:跨越鐵路最小(xiao)凈高(gao)5.5m,跨越廠(chang)內道路最小(xiao)凈高(gao)5m。
以上僅是(shi)一般情(qing)況下管(guan)廊(lang)的(de)高度(du)要求(qiu),管(guan)廊(lang)的(de)設(she)計高度(du)還(huan)要結(jie)合項(xiang)目(mu)實際情(qing)況考慮全廠(chang)的(de)大型設(she)備的(de)運輸需要的(de)高度(du),再最(zui)終確定管(guan)廊(lang)的(de)布置高度(du)。例如(ru),某新建工廠(chang),根據大件運輸的(de)要求(qiu),跨越全廠(chang)主干道的(de)管(guan)廊(lang),距離地面的(de)最(zui)小凈空高度(du)為(wei)10m。
國(guo)外某工(gong)程(cheng)項目,需根據(ju)所在國(guo)家(jia)的(de)規范要(yao)求設計管廊高度。例如,蘇聯(lian)(俄羅斯(si))的(de)消防車一般(ban)較高,俄羅斯(si)全廠(chang)管廊距(ju)離(li)路(lu)面最(zui)小凈高為5.5m,比(bi)中國(guo)高0.5m。
b. 當管廊有桁架時(shi)要按桁架底高計算。
c. 為有效地利(li)用管廊(lang)空(kong)(kong)間,多在(zai)管廊(lang)下(xia)布置泵(beng)。考慮(lv)到(dao)泵(beng)的操作和維護,宜有4.0m凈空(kong)(kong)高(gao)度。
②. 管(guan)廊(lang)(lang)上管(guan)道(dao)與分(fen)區設(she)備(bei)(bei)相接時,一般應比管(guan)廊(lang)(lang)的(de)底層管(guan)道(dao)標高(gao)低或高(gao)600~1000mm。管(guan)廊(lang)(lang)下布(bu)置管(guan)殼式換熱設(she)備(bei)(bei)時,根(gen)據設(she)備(bei)(bei)實際高(gao)度(du)需要增(zeng)加管(guan)廊(lang)(lang)下的(de)凈空。
③. 管廊外設(she)(she)備(bei)的(de)管道(dao)進入管廊所必(bi)需的(de)高度。若為大型裝(zhuang)置(zhi),其設(she)(she)備(bei)和管徑較大,為防止管道(dao)出(chu)現不必(bi)要的(de)袋(dai)形,管廊最(zui)下一層橫梁底標高應低于設(she)(she)備(bei)管口500~750mm。
④. 若管廊(lang)附近(jin)有換(huan)熱框架,換(huan)熱設備(bei)的(de)下部管道要從它的(de)框架平臺(tai)接往管廊(lang),此時至少要保(bao)證(zheng)管廊(lang)的(de)下層橫梁低于(yu)換(huan)熱框架第(di)一層平臺(tai)。
⑤. 當管廊改變(bian)方向或兩(liang)管廊成(cheng)直角(jiao)相交時,管廊宜(yi)(yi)錯(cuo)層(ceng)布置,錯(cuo)層(ceng)的高差(cha)宜(yi)(yi)為(wei)750~1000mm。當高差(cha)為(wei)750mm時,DN250以下的管子用(yong)兩(liang)個直角(jiao)彎(wan)頭和短管相接(jie);大于(yu)DN250的管子用(yong)一(yi)(yi)個45°彎(wan)頭、一(yi)(yi)個90°彎(wan)頭相接(jie)。對于(yu)大型裝置也可(ke)采用(yong)1000mm以上(shang)的高差(cha)。
⑥. 在確(que)定管(guan)(guan)廊(lang)(lang)高(gao)(gao)度(du)時,要考慮到管(guan)(guan)廊(lang)(lang)橫梁和縱梁的結構斷面和形式(shi),務必使梁底或(huo)桁(heng)架底的高(gao)(gao)度(du)滿足上(shang)(shang)述確(que)定管(guan)(guan)廊(lang)(lang)高(gao)(gao)度(du)的要求。對于(yu)雙(shuang)層(ceng)管(guan)(guan)廊(lang)(lang),上(shang)(shang)下層(ceng)間距一般為1.5~2.0m,對于(yu)大(da)型裝置上(shang)(shang)下層(ceng)間距可(ke)為2.5~3.0m,主要取(qu)決(jue)于(yu)管(guan)(guan)廊(lang)(lang)上(shang)(shang)最大(da)口(kou)徑的管(guan)(guan)道。
⑦. 裝置之間(jian)的(de)(de)管(guan)廊高度取決于(yu)管(guan)廊地(di)區(qu)的(de)(de)具體(ti)情況,如沿工廠邊緣或罐區(qu),不會影響廠區(qu)交通和擴(kuo)建的(de)(de)地(di)段,從經(jing)濟性和檢修(xiu)方(fang)便考慮(lv),可用(yong)管(guan)墩敷設,離地(di)面高300~500mm,即可滿足要求。
五、管墩的設計
圖3.7 常壓罐(guan)區(qu)的管墩(dun)設計(ji)
①. 管墩(dun)的間距按管徑最小的管道允許跨距進行設(she)置。
②. 管墩頂距地面一般不宜小于0.4m,見(jian)圖(tu)3.7。

六、混凝土管廊(管墩(dun))梁頂預埋件
混凝(ning)土管(guan)(guan)廊(管(guan)(guan)墩)的(de)(de)梁頂(ding)應(ying)設通長(chang)預(yu)埋(mai)件(jian),預(yu)埋(mai)件(jian)的(de)(de)形式(shi)應(ying)符(fu)合(he)國家(jia)標準SH/T 3055的(de)(de)要求。一般橫(heng)梁上應(ying)埋(mai)放一根圓鋼或鋼板,以減少管(guan)(guan)道與橫(heng)梁間(jian)的(de)(de)摩(mo)擦力。
例如,某項(xiang)目在混凝(ning)(ning)土管(guan)(guan)廊(lang)(管(guan)(guan)墩(dun))梁頂上設置預(yu)埋(mai)件(jian)時,混凝(ning)(ning)土管(guan)(guan)廊(lang)(管(guan)(guan)墩(dun))梁頂一般按圖(tu)3.8(a)、(b)所示設通長預(yu)埋(mai)件(jian),當(dang)管(guan)(guan)廊(lang)需要設導向架時,預(yu)埋(mai)件(jian)采用(yong)圖(tu)3.8(b)所示的(de)形式;當(dang)管(guan)(guan)廊(lang)需要設固定架時,預(yu)埋(mai)件(jian)采用(yong)圖(tu)3.8(c)所示的(de)形式。

七、管(guan)廊上儀表電氣電纜槽架及(ji)巡檢梯子平臺的布(bu)置
①. 如果(guo)是(shi)中小型工程項(xiang)目,儀表電(dian)氣電(dian)纜槽(cao)架寬度較小,布置(zhi)在(zai)管廊(lang)(lang)內或者掛在(zai)管廊(lang)(lang)外側面均可,并保持管道(dao)與槽(cao)架之間的間距。
②. 大中型項(xiang)目,儀(yi)(yi)表電(dian)氣電(dian)纜(lan)槽(cao)(cao)架(jia)(jia)較寬,可(ke)能需(xu)要占一層(ceng)管廊(lang)的空間。電(dian)纜(lan)槽(cao)(cao)架(jia)(jia)和(he)儀(yi)(yi)表槽(cao)(cao)架(jia)(jia)宜布置在上層(ceng),電(dian)纜(lan)槽(cao)(cao)架(jia)(jia)層(ceng)通常布置在火炬(ju)管道層(ceng)與公用(yong)工程管道層(ceng)之間。槽(cao)(cao)架(jia)(jia)的附近(jin)或正下方(fang)不應(ying)布置有熱(re)影(ying)響的管道。
③. 對(dui)于(yu)全廠性管(guan)廊,有的項目在電纜槽架(jia)層(ceng)設(she)(she)置有全廠性巡檢(jian)通道,并每(mei)隔一定距離設(she)(she)置一直(zhi)爬梯到地面。
工程(cheng)應用(yong):管(guan)廊(lang)柱(zhu)子基礎(chu)與地下管(guan)道(dao)、埋地電纜碰(peng)撞
某工(gong)程在施工(gong)管廊(lang)柱子(zi)結構基礎時才發現,柱子(zi)基礎與地下(xia)管道、埋地電纜等大量(liang)碰撞,只能修(xiu)改(gai)管廊(lang)柱子(zi)位置或(huo)者修(xiu)改(gai)地下(xia)管道位置或(huo)者修(xiu)改(gai)埋地電纜的(de)位置,造(zao)成多個專業(ye)的(de)設計文件大面積修(xiu)改(gai)。
建議(yi)在設計階段進(jin)行管(guan)廊柱子(zi)基礎與地下管(guan)道、埋地電(dian)纜碰撞檢(jian)查和各專業的會簽。
工程應用:管廊層高偏高引起的設計不合(he)理
某石(shi)化(hua)裝(zhuang)置施工完后,發現(xian)裝(zhuang)置四周的全廠(chang)外管廊(lang)高(gao)達25m,從遠處觀望,外管廊(lang)全部遮(zhe)擋住(zhu)了(le)裝(zhuang)置內塔及其(qi)他設備,如(ru)圖(tu)3.9所示。究(jiu)其(qi)原因,發現(xian)在設計(ji)時(shi),管道間距(ju)沒有按(an)照最(zui)小管間距(ju)設計(ji),共(gong)5層(ceng)(ceng)管廊(lang),大口徑管道分布在各個(ge)管廊(lang)層(ceng)(ceng)高(gao),每層(ceng)(ceng)的層(ceng)(ceng)高(gao)至(zhi)少設計(ji)成了(le)3m,最(zui)大層(ceng)(ceng)高(gao)設計(ji)成了(le)5m。筆者嘗試優化(hua)后,這條管廊(lang)總高(gao)度至(zhi)少降低(di)8m。

工(gong)程應用(yong):管廊柱子偏粗的不(bu)合理設計
在施工(gong)(gong)現場,某(mou)裝置管(guan)(guan)(guan)廊(lang)(A工(gong)(gong)程(cheng)公司(si)設計(ji)(ji))與鄰(lin)近裝置管(guan)(guan)(guan)廊(lang)(B工(gong)(gong)程(cheng)公司(si)設計(ji)(ji))直通連(lian)接時(shi),發現管(guan)(guan)(guan)廊(lang)上的(de)管(guan)(guan)(guan)子、電(dian)纜槽(cao)架是(shi)一樣的(de),管(guan)(guan)(guan)廊(lang)層高也一樣,但是(shi),A工(gong)(gong)程(cheng)公司(si)負(fu)責設計(ji)(ji)的(de)管(guan)(guan)(guan)廊(lang)柱(zhu)子尺寸為800mm×800mm,而(er)B工(gong)(gong)程(cheng)公司(si)設計(ji)(ji)的(de)管(guan)(guan)(guan)廊(lang)柱(zhu)子尺寸僅有400mm×400mm,差距非(fei)常(chang)大。
經核(he)對設計文件,發現A工(gong)程公司(si)設計的載(zai)荷(he)數(shu)據比正常偏(pian)大(da)了很多,引起了管廊柱子偏(pian)粗的不(bu)合理設計。

