以(yi)某煉(lian)油項(xiang)目裝置(zhi)作為一個實例,列出了(le)在(zai)已(yi)有工廠中開展新裝置(zhi)平面布置(zhi)設計的步驟。通過(guo)例子展示了(le)某些推薦的做(zuo)法和布置(zhi)設計的原則。
一、裝置設備布置設計要求的一般(ban)資料(liao)
當(dang)開始做裝置設(she)備(bei)平面(mian)布(bu)置圖(tu)時,需要從(cong)工(gong)程設(she)計項(xiang)目組(zu)及工(gong)藝、設(she)備(bei)、儀表、電氣、總圖(tu)等專(zhuan)業得到(dao)下(xia)列資(zi)料。
①. 新裝(zhuang)置區域(yu)附(fu)近現場資料(在某些設計單位,這些條件由總圖專業(ye)供給管道專業(ye))。
a. 工(gong)程(cheng)設計資料(liao)(包括新裝(zhuang)置區(qu)域現(xian)場平(ping)面(mian)圖,地(di)上(shang)或地(di)下(xia)設施,水、電、汽等公用(yong)工(gong)程(cheng)條件,選用(yong)的(de)防火規范、安全距離、噪聲控制的(de)標準(zhun)等)。
b. 常年(nian)最小頻率風向。
c. 裝置(zhi)及(ji)進出(chu)管線建(jian)議的(de)位置(zhi)。
d. 電纜進出口位(wei)置。
e. 新裝置區附近的道路(lu)、鐵路(lu)等交通(tong)條件及其詳(xiang)圖(tu)。
f. 裝置(zhi)的基準點(dian)位置(zhi)。
g. 裝置的指北向。
h. 檢(jian)修用(yong)吊車(che)的能力和尺寸。
i. 消防車(che)通(tong)道(dao)。
②. 從(cong)其(qi)他專業得到的資(zi)料。
a. 工藝流(liu)程圖或管道-儀(yi)表流(liu)程圖。
b. 設備(bei)表及設備(bei)尺(chi)(chi)寸(cun)(cun)。例如:大型(xing)儲罐(guan)的(de)(de)(de)直徑、高度或容量;加熱爐(lu)的(de)(de)(de)外(wai)(wai)形(xing)(xing)尺(chi)(chi)寸(cun)(cun)、形(xing)(xing)式(shi),煙囪(cong)是獨立(li)的(de)(de)(de)還是安裝在加熱爐(lu)頂(ding)部,煙囪(cong)尺(chi)(chi)寸(cun)(cun);壓縮機(ji)的(de)(de)(de)形(xing)(xing)式(shi)、外(wai)(wai)形(xing)(xing)尺(chi)(chi)寸(cun)(cun),其密封油(you)、潤滑油(you)系統的(de)(de)(de)布(bu)置,輔助設備(bei)的(de)(de)(de)布(bu)置;泵的(de)(de)(de)形(xing)(xing)式(shi)、外(wai)(wai)形(xing)(xing)尺(chi)(chi)寸(cun)(cun),驅動機(ji)的(de)(de)(de)形(xing)(xing)式(shi)和要求(qiu);各種非定型(xing)設備(bei)的(de)(de)(de)規(gui)格,包括塔器(qi)、換熱器(qi)、容器(qi)等。
c. 設備(bei)(bei)安(an)(an)裝和檢修要求。例如:塔的(de)最小安(an)(an)裝高(gao)度(du)(從地(di)面至塔底(di)(di)封(feng)(feng)頭(tou)切(qie)線處);有(you)重(zhong)力流(liu)或(huo)固(gu)體卸(xie)料的(de)立(li)式(shi)或(huo)臥式(shi)容器(qi)的(de)安(an)(an)裝標高(gao)要求(立(li)式(shi)的(de)指(zhi)底(di)(di)部封(feng)(feng)頭(tou)切(qie)線處至地(di)面的(de)距離,臥式(shi)的(de)指(zhi)儲槽底(di)(di)部至地(di)面的(de)距離);換熱器(qi)管束(shu)抽芯所(suo)需空間;壓縮(suo)機、泵或(huo)其他回轉設備(bei)(bei)拆(chai)卸(xie)和更(geng)換零部件的(de)要求。
③. 空(kong)冷(leng)器形式和(he)(he)外形尺寸(cun)需要和(he)(he)工藝(yi)專(zhuan)業協商,因為(wei)空(kong)冷(leng)器通常(chang)安裝在管廊的(de)上方,管廊的(de)尺寸(cun)要和(he)(he)空(kong)冷(leng)器的(de)規格相適應。
通常在管廊(lang)的(de)下(xia)方布置泵(beng),需要泵(beng)的(de)型號、規格、外形尺寸(cun)及泵(beng)的(de)吸入口(kou)(kou)和排出口(kou)(kou)管線連(lian)接尺寸(cun),如能提供(gong)樣(yang)本更好。
二、對工藝流程圖的(de)研究
作(zuo)平(ping)面布置圖(tu)時,工藝流程(cheng)圖(tu)已(yi)準備(bei)好(圖(tu)5-97)。

請工(gong)藝設(she)計人(ren)員介紹裝置(zhi)的工(gong)藝流程,并(bing)研究出直接影響(xiang)設(she)備(bei)布置(zhi)的若干(gan)結論,例如下面所(suo)列內(nei)容。

①. 設備布置要順流程。原(yuan)油加料泵P-101要緊(jin)貼裝置西邊界(jie)管線進出口“A”。因為原(yuan)油管線從“A”處(chu)進入裝置(圖5-98)。
②. 泵應布置在相應的設備(bei)附近,以免泵吸入管線壓降太大(da)。
③. 要(yao)(yao)滿足(zu)大(da)型設備布置上(shang)的要(yao)(yao)求。如加(jia)熱爐(lu)F-101,要(yao)(yao)保(bao)證(zheng)安(an)全距離。另外,燃料管線(xian)用分(fen)(fen)配(pei)臺分(fen)(fen)配(pei),進口接管多,故爐(lu)子周圍要(yao)(yao)有足(zu)夠的空間。
④. 關鍵管(guan)(guan)線的(de)(de)(de)柔性要(yao)求(qiu),在布置階段請應(ying)力分析人(ren)員協助,例如:加熱爐的(de)(de)(de)轉油管(guan)(guan)線是高溫合金管(guan)(guan)線,要(yao)盡可(ke)(ke)能短,且沒(mei)有袋形;T-101塔底(di)管(guan)(guan)線是高溫的(de)(de)(de),要(yao)考慮管(guan)(guan)線的(de)(de)(de)柔性以(yi)及備用泵的(de)(de)(de)熱的(de)(de)(de)和(he)冷的(de)(de)(de)工況;進出汽提塔T-102和(he)T-103的(de)(de)(de)管(guan)(guan)線盡可(ke)(ke)能短;汽提塔至火炬系統的(de)(de)(de)泄壓管(guan)(guan)線應(ying)盡可(ke)(ke)能短。
⑤. 設備布置要(yao)考慮配管(guan)要(yao)求,例如:從(cong)(cong)T-101至E-115的(de)(de)架空管(guan)線(xian)(xian)(xian)應(ying)(ying)避免有(you)袋形(xing),在滿(man)足(zu)管(guan)線(xian)(xian)(xian)柔性和(he)塔(ta)膨脹的(de)(de)前(qian)提下,管(guan)線(xian)(xian)(xian)走向(xiang)應(ying)(ying)簡單(dan)些(xie);從(cong)(cong)E-115至V-101的(de)(de)冷凝液管(guan)線(xian)(xian)(xian)應(ying)(ying)避免有(you)袋形(xing);從(cong)(cong)V-101至壓縮機(ji)C-101的(de)(de)氣體管(guan)線(xian)(xian)(xian)盡可能短,避免有(you)袋形(xing)。
三、平(ping)面布置(zhi)圖(tu)的編制
在(zai)完成工藝(yi)流程圖的(de)(de)研究后(hou),進一步檢查新(xin)收到的(de)(de)各專業(ye)的(de)(de)資料是否有其他的(de)(de)要(yao)求。開(kai)始平面布置圖的(de)(de)設計。
①. 如工(gong)程沒有特殊的要求,裝置的操作通道、檢修通道及(ji)平臺的設(she)置等均(jun)按設(she)計規(gui)范(fan)確定,下列(lie)各項在設(she)計中應予遵循。
a. 裝置(zhi)檢修(xiu)(xiu)時,需汽車(吊車)通過(guo)的主(zhu)要檢修(xiu)(xiu)通道上方(fang)最(zui)小凈(jing)空(kong)4.5m。
b. 裝置(zhi)四周環(huan)形道(dao)路上方(fang)最(zui)小凈空(kong)5.0m,鐵(tie)軌上方(fang)最(zui)小凈空(kong)5.5m(SH 3012-2000)。
c. 泵的操(cao)作溫(wen)度340℃或340℃以(yi)上時,不能布置(zhi)在(zai)(zai)管(guan)廊(lang)下,應布置(zhi)在(zai)(zai)距管(guan)廊(lang)外側(ce)3m以(yi)外。泵的操(cao)作溫(wen)度在(zai)(zai)340℃以(yi)下時,可布置(zhi)在(zai)(zai)管(guan)廊(lang)下,必須考慮泵和驅動機的檢修(xiu),泵上方(fang)最小凈空3m。
d. 通常,空(kong)冷(leng)器(qi)布(bu)置在管(guan)廊上。
e. 儲存烴(jing)類設備的(de)支架(jia)及輸送烴(jing)類管道的(de)管廊支柱應進行防火保護的(de)處(chu)理。
②. 要考(kao)慮(lv)運(yun)輸(shu)、安裝(zhuang)設(she)備(bei)的(de)位置。道路或通道要有足夠(gou)的(de)空間,以(yi)滿(man)足大(da)型(xing)設(she)備(bei)的(de)運(yun)輸(shu)和安裝(zhuang)。
③. 進行初步的設備布置(zhi)(zhi)。如(ru)圖(tu)(tu)5-98所(suo)示(shi),用方塊(kuai)的形式繪(hui)出管廊(lang)、加熱爐(lu)、蒸餾塔、框架、控制室(shi)等的位置(zhi)(zhi)。這張(zhang)布置(zhi)(zhi)圖(tu)(tu)討論通過,即(ji)可開(kai)始設計正式的平面布置(zhi)(zhi)圖(tu)(tu)。
④. 繪制(zhi)平面布置圖(tu)的步驟。
a. 在裝置設備(bei)布置區域(yu)內(nei)確定(ding)管廊的布置。
b. 加熱爐的布置。
c. 控制室(shi)的布置。
d. 主要設備的布(bu)置,包(bao)括分(fen)餾塔、空冷器(qi)、大型容器(qi)、壓縮機(ji)、泵等(deng)。
全部(bu)設備布置完(wan)成后,經校驗,并(bing)適(shi)當調整,使用計算機繪出正式平面布置圖。
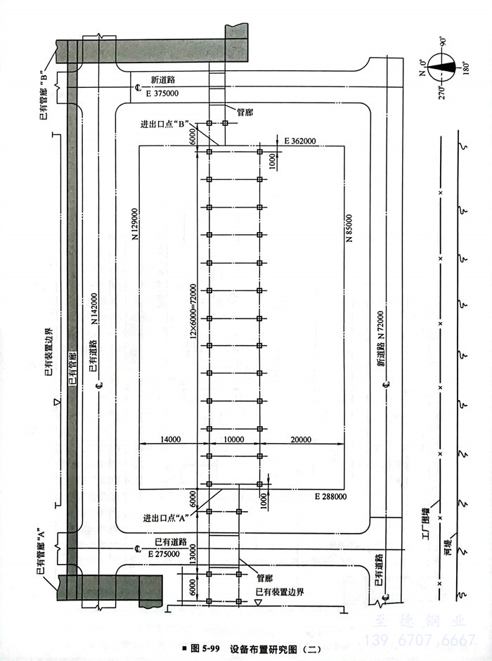
四、裝置管(guan)廊的(de)布(bu)置
裝置(zhi)管廊的位置(zhi)必須優先考慮(lv),因為它會影響(xiang)設(she)備的布置(zhi)。
圖5-99表示(shi)了新裝置管廊(lang)的位(wei)置與已有管廊(lang)的關系(xi),下面敘述如何布置管廊(lang)。

①. 首先應與土建協商(shang)確(que)定結構(gou)材(cai)料,是(shi)使用鋼筋(jin)混凝土的(de)還是(shi)鋼結構(gou)的(de)。鋼筋(jin)混凝土的(de)較(jiao)為(wei)經濟(ji)。
②. 管(guan)(guan)廊(lang)(lang)的柱距6m,可滿足DN80和DN80以(yi)上的管(guan)(guan)線,不(bu)需要中間支承。管(guan)(guan)廊(lang)(lang)下(xia)兩(liang)個柱距之間可布置兩(liang)臺中型(xing)的泵。
③. 管(guan)(guan)廊(lang)(lang)的(de)(de)寬(kuan)度(du)(du)(du),首(shou)先應明確管(guan)(guan)廊(lang)(lang)上(shang)是否(fou)安裝空冷(leng)(leng)器(qi)。若安裝空冷(leng)(leng)器(qi),管(guan)(guan)廊(lang)(lang)的(de)(de)寬(kuan)度(du)(du)(du)由空冷(leng)(leng)器(qi)的(de)(de)管(guan)(guan)長(chang)決(jue)定(ding)。若管(guan)(guan)廊(lang)(lang)上(shang)沒有(you)空冷(leng)(leng)器(qi),則作完管(guan)(guan)線走向草圖后,根據(ju)管(guan)(guan)子排列寬(kuan)度(du)(du)(du),再預留20%的(de)(de)裕量(liang)[全廠(chang)性(xing)管(guan)(guan)廊(lang)(lang)或管(guan)(guan)墩上(shang)(包括穿越涵洞(dong))應留有(you)10%~30%的(de)(de)裕量(liang),裝置主管(guan)(guan)廊(lang)(lang)宜留有(you)10%~20%的(de)(de)裕量(liang)],并考(kao)慮管(guan)(guan)廊(lang)(lang)下設備(bei)檢修的(de)(de)最小通道,確定(ding)管(guan)(guan)廊(lang)(lang)的(de)(de)寬(kuan)度(du)(du)(du)。
④. 根(gen)據已有管(guan)廊(lang)的位置(zhi),新裝置(zhi)管(guan)廊(lang)東(dong)、西(xi)向布置(zhi)較為合理。管(guan)廊(lang)的柱(zhu)子邊緣距道路不應小于1m。
⑤. 加熱爐應(ying)放(fang)在常年最小頻(pin)率風(feng)向的下風(feng)側,位于管廊(lang)南(nan)側(圖5-100)。爐子(zi)所占面積較大,總寬度(du)為10m,其四周要設置平臺,從裝置南(nan)邊界線(xian)往北20m設管廊(lang)第一排柱子(zi)。

五(wu)、主要設備的(de)布置
1. 原油加熱爐F-101的布置(圖5-101)

原油加熱爐(lu)是(shi)長23m寬10m的箱式(shi)爐(lu),煙囪和加熱爐(lu)組(zu)裝(zhuang)在一起。
加熱爐(lu)布置的要點如下:
①. 位于常年最小頻(pin)率風向的下風側。
②. 加熱(re)爐(lu)周圍(wei)保(bao)持15m的安(an)全距離。
③. 對流段(duan)管(guan)束(shu)抽芯所需要的空間,在布(bu)置圖上要表(biao)示出,抽芯區域內不得(de)有任何障礙物。
④. 為便于(yu)施(shi)工安(an)裝,加熱爐(lu)應位于(yu)主(zhu)要道路旁(pang)。
2. 控制(zhi)室的布置(圖5-101)
確定控(kong)制室的(de)(de)位置(zhi)時應(ying)(ying)考慮安全性(xing),控(kong)制室應(ying)(ying)離逸出可燃性(xing)氣體的(de)(de)設備(bei)有15m的(de)(de)距離。在有的(de)(de)設計單位,控(kong)制室的(de)(de)布置(zhi)是由總圖專業完成的(de)(de)。
3. 分(fen)餾塔(ta)T-101及有關設(she)備的布置(圖5-101)
從(cong)加熱爐F-101到(dao)塔T-101的(de)轉油線是(shi)一根(gen)關鍵(jian)管線,盡可能短些(xie),因(yin)為管口是(shi)在(zai)爐子(zi)的(de)西面,所以T-101在(zai)F-101的(de)西面是(shi)合理(li)的(de)。
汽提塔T-102 和T-103 緊靠T-101。
如(ru)圖(tu)5-101所(suo)示,應按工藝流程和重(zhong)力流要求布(bu)置設備。從(cong)T-101來的塔頂管線經換熱器(qi)E-101至(zhi)空冷(leng)器(qi)E-115,再(zai)經冷(leng)凝器(qi)E-110到儲槽V-101。
在正(zheng)式(shi)畫(hua)平面布置圖(tu)以前,先畫(hua)一張(zhang)草圖(tu)。研究所有(you)設備安裝(zhuang)和檢修是否可行。
4. 空冷器(qi)的布(bu)置
大型(xing)空(kong)冷器E-115放在中間(jian),便于從E-101來的管線敷設(she)。
管線(xian)的走向要(yao)和(he)流程一致。因(yin)為煤油(you)(you)和(he)輕組分油(you)(you)管線(xian)在(zai)(zai)裝置東邊界(jie)進出(chu)口(kou)點“B”連(lian)接(jie),故空冷器E-116和(he)E-117放(fang)在(zai)(zai)E-115的東邊。
便(bian)于(yu)擴建時預留(liu)空(kong)冷器的安裝,預留(liu)的空(kong)冷器放在E-115的西邊。
5. 脫鹽水V-102及(ji)有關設備的布置(zhi)(圖5-101)
V-102是一個大型設備,直徑3m,切線(xian)至(zhi)切線(xian)長度為11m,加上球形(xing)封頭總長為14m。因(yin)為管廊至(zhi)南邊界線(xian)的距(ju)離是20m,可放(fang)置脫鹽器,故把V-102放(fang)在管廊的南邊。
換熱(re)器E-102、E-103和E-104布(bu)置在管廊的(de)北面(mian),因為原油進料管線(xian)從西面(mian)進入(ru)后,經換熱(re)器后進入(ru)脫鹽器。
加(jia)熱爐加(jia)料(liao)泵P-102旁布置抑制劑配制設備(bei)(bei)。脫鹽器(qi)人口要加(jia)入抑制劑,配制設備(bei)(bei)放(fang)在這里,袋子拆卸方(fang)便。
6. 原油預熱器群(qun)的布置(圖5-100和圖5-101)
換熱(re)器(qi)E-105、E-106、E-107放在管廊的(de)北面換熱(re)器(qi)區域內,和E-102、E-103、E-104排(pai)成一行。
這些換(huan)熱器的布置,不能妨礙換(huan)熱器周圍的檢修(xiu)通道,并(bing)要提(ti)供(gong)足(zu)(zu)夠(gou)的管(guan)束抽芯空間(jian)。在管(guan)廊和換(huan)熱器之(zhi)間(jian)要有足(zu)(zu)夠(gou)的距離,以便于接近換(huan)熱器封頭。
完(wan)成(cheng)換熱器E-108、E-113和E-114的(de)定位(wei):蒸汽發(fa)生器E-108布置在E-107的(de)東邊,它靠近泵(beng)P-107及相對地(di)接近F-101。
要(yao)符合(he)流(liu)程圖的流(liu)向,水冷卻器E-113緊靠E-104布置,使得E-101來的配管(guan)距離(li)最短。冷卻器E-114位于(yu)E-108的東邊,在控制(zhi)室最小安(an)全(quan)距離(li)之外。
7. 壓縮機C-101及附屬設備的布(bu)置(圖5-100和圖5-101)
壓(ya)縮(suo)機(ji)為(wei)往復(fu)式、兩段、電機(ji)驅動的雙缸(gang)對置式壓(ya)縮(suo)機(ji),帶一(yi)(yi)、二段冷卻(que)器,一(yi)(yi)臺,占地面積約(yue)5㎡。
甲方沒(mei)有提出建(jian)造(zao)壓縮機(ji)廠房的要求時,則(ze)壓縮機(ji)露天安(an)裝(zhuang)(zhuang)。它和吸入罐(guan)V-104及V-105一(yi)起布置在裝(zhuang)(zhuang)置的最西(xi)端。
因為氣體(ti)和二(er)段冷凝液管線在“A”處進出(chu)裝(zhuang)置(zhi)(zhi),壓縮機C-101布置(zhi)(zhi)在裝(zhuang)置(zhi)(zhi)邊(bian)界線附近是很(hen)理想(xiang)的。
8. 泵(beng)的布(bu)置
圖5-100示出了管廊(lang)下泵的布(bu)置。
當管廊柱間距為6m時,可安(an)裝兩臺(tai)中(zhong)型泵(beng),并有供電纜(lan)的足(zu)夠空間。泵(beng)的排出口(kou)位于(yu)管廊柱中(zhong)心線外(wai)側600mm(見圖5-102)。
原油加料泵P-101位(wei)于裝置西(xi)邊(bian)界管線進出口附(fu)近。
泵(beng)P-103、P-105和(he)P-108靠近有關(guan)設備T-101布置(zhi),分(fen)餾塔(ta)T-101及泵(beng)的吸(xi)入管線要有一定的柔性。
泵P-104、P-106布置在框架(jia)下。
9. 油水分離(li)器的布置(圖5-100)
油水(shui)分離(li)器是(shi)把烴類(lei)和雨水(shui)、消防水(shui)分離(li),然后用泵將(jiang)烴送至(zhi)廢(fei)油罐(在(zai)裝置以外)處理,分離(li)器排(pai)出(chu)的污水(shui)送至(zhi)全廠污水(shui)處理系(xi)統。
場地西(xi)南角的尺寸和(he)位置(zhi)(zhi)(zhi)布置(zhi)(zhi)(zhi)油水分離器合適,理由如下:裝置(zhi)(zhi)(zhi)污水管要(yao)接至工廠已有污水總(zong)管,正好在(zai)油水分離器的南面;廢油管線理想(xiang)的引(yin)出位置(zhi)(zhi)(zhi)在(zai)“A”點(dian),離加(jia)熱爐(lu)F-101的距離最遠。
六、管線(xian)走向研究(jiu)圖
平面布(bu)置圖(tu)供給各有關專業前,根據管(guan)道-儀表流程圖(tu)畫管(guan)線(xian)走向圖(tu)以校驗平面布(bu)置圖(tu)。
①. 管(guan)線走向(xiang)圖的用途有(you):決定管(guan)廊的寬度和層(ceng)數;校核設備布置和物料流向(xiang)。
②. 管(guan)線走(zou)(zou)向(xiang)圖(tu)由裝置設(she)備(bei)布置設(she)計者負責繪制。管(guan)線走(zou)(zou)向(xiang)圖(tu)由一根(gen)(gen)根(gen)(gen)管(guan)線組成,管(guan)線走(zou)(zou)向(xiang)盡可能使(shi)距離縮短,減(jian)少(shao)不必(bi)要的(de)繞行(xing)。通常,管(guan)廊(lang)的(de)走(zou)(zou)向(xiang)改變(bian)的(de),要改變(bian)標高,圖(tu)上不必(bi)表示管(guan)子的(de)上升和下(xia)降。
管廊上的調(diao)節(jie)閥(fa)組、孔板和主要管線中的特殊配件應表示出位置(zhi),以便(bian)校核(he)所需要的空間。
當管線走向圖完成后,應校核管廊(lang)的(de)(de)寬度,為今后的(de)(de)擴(kuo)建,每(mei)一(yi)層管廊(lang)預留一(yi)定(ding)的(de)(de)余量。如果管廊(lang)的(de)(de)寬度超過10m,通常改為雙層管廊(lang)。
③. 管線走(zou)向圖應做(zuo)到(dao)如下(xia)各點。
a. 管廊的寬度一般不超過10m。
b. 只有(you)安裝空冷器組(zu)的一段管廊需要雙層的。
c. 為加熱爐F-101轉油線的支(zhi)承(cheng),需(xu)設一單層管廊(lang)。
d. 在管廊上敷設電氣和(he)儀表電纜,兩(liang)電纜槽(cao)之(zhi)間要有1m的凈(jing)距(ju)。
e. 確(que)定管廊橫梁的標高。
f. 在管線進出(chu)口“A”處若為單層管廊時(shi),需(xu)增加管廊的寬(kuan)度,在管線進出(chu)口“B”處為單層管廊時(shi),也需(xu)增加管廊的寬(kuan)度(去火炬干管除外)。
g. 確定(ding)從控制室(shi)來的(de)電纜(lan)架的(de)位置。
h. 確定冷(leng)卻水、循環水在裝置進出口(kou)的位置。
i. 完成裝置(zhi)進出口管線(xian)表,包括管線(xian)尺寸(cun)和流動(dong)介質(zhi)。
七(qi)、修(xiu)改并完成建(jian)議的平面布(bu)置圖
將建議(yi)的(de)平面(mian)布置圖修(xiu)改了(le),把管(guan)(guan)廊北(bei)面(mian)的(de)換熱器(qi)群(qun)南移,使換熱器(qi)殼(ke)體的(de)一部(bu)分(fen)和(he)封頭位于管(guan)(guan)廊下,因為(wei)附(fu)近沒(mei)有泵。圖5-103中(zhong)還表示了(le)空冷器(qi)管(guan)(guan)束抽芯(xin)所需的(de)吊車通(tong)道。

為(wei)了保證裝置檢修時吊(diao)(diao)車(che)能吊(diao)(diao)裝各種負荷(he),要校(xiao)核吊(diao)(diao)車(che)的荷(he)載能否達到要求(qiu)。
圖(tu)5-102是(shi)裝置的剖視圖(tu),這張圖(tu)需要(yao)與甲(jia)方及(ji)施工單位結合,它進(jin)一(yi)步驗證(zheng)了(le)通道等檢修條件是(shi)否滿足(zu)要(yao)求。

圖5-104為用坐(zuo)標(biao)標(biao)注(zhu)(zhu)平面布(bu)置圖的(de)實例:建、構筑(zhu)物的(de)尺寸要(yao)以(yi)坐(zuo)標(biao)標(biao)注(zhu)(zhu),設(she)備(bei)的(de)安裝尺寸從有(you)坐(zuo)標(biao)的(de)柱(zhu)號標(biao)注(zhu)(zhu)相對尺寸。


